EVEREST HOMES 35 TSERI

Σύγχρονες κατοικίες σχεδιασμένες για άνεση, ποιότητα και βιώσιμη διαβίωση στο Τσέρι.

EVEREST HOMES 35 Τσέρι είναι ένα σύγχρονο οικιστικό έργο που συνδυάζει καθαρό αρχιτεκτονικό σχεδιασμό, λειτουργικότητα και υψηλή αισθητική. Αποτελείται από ημιανεξάρτητες κατοικίες σε προνομιακή τοποθεσία στο Τσέρι, σχεδιασμένες για άνετη και ποιοτική καθημερινή διαβίωση.
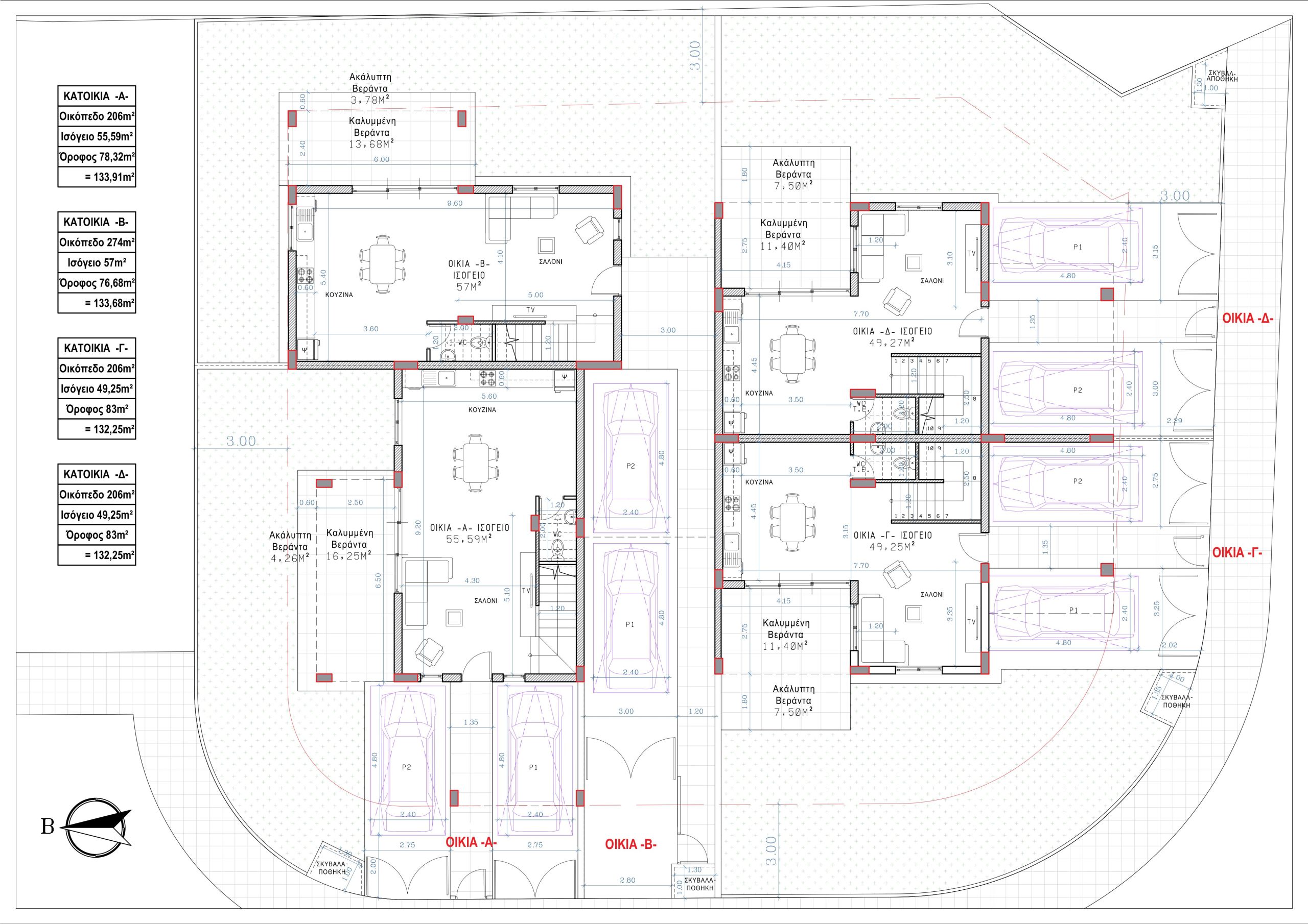
Κάθε κατοικία διαθέτει 3 υπνοδωμάτια, 3 χώρους υγιεινής και ιδιωτικό κήπο με βεράντα, προσφέροντας ιδανικούς χώρους για οικογένειες και σύγχρονο τρόπο ζωής. Το έργο είναι ενεργειακά αναβαθμισμένο και εξοπλισμένο με φωτοβολταϊκά συστήματα, εξασφαλίζοντας άνεση, οικονομία και βιωσιμότητα.

    • A
    • V
    • A
    • I
    • L
    • A
    • B
    • L
    • E
  • EVEREST HOME A
  • ROOMS: 3
  • TOTAL GROUND FLOOR (SQ.M) : 52.33 m²
  • TOTAL FIRST FLOOR: 69.30 m²
  • TOTAL COVERED VERANDA: 13.64 M²
  • TOTAL UNCOVERED VERANDA: 7.56 M²
  • TOTAL PLOT SIZE: 206 M²
    • A
    • V
    • A
    • I
    • L
    • A
    • B
    • L
    • E
  • EVEREST HOME B
  • ROOMS: 3
  • TOTAL GROUND FLOOR (SQ.M) : 57.00 M²
  • TOTAL FIRST FLOOR: 76.68 M²
  • TOTAL COVERED VERANDA: 14.25 M²
  • TOTAL UNCOVERED VERANDA: 2.80 M²
  • TOTAL PLOT SIZE: 274 M²
    • A
    • V
    • A
    • I
    • L
    • A
    • B
    • L
    • E
  • EVEREST HOME C
  • ROOMS: 3
  • TOTAL GROUND FLOOR (SQ.M) : 50.44 M²
  • TOTAL FIRST FLOOR: 72.83 M²
  • TOTAL COVERED VERANDA: 13.29 M²
  • TOTAL UNCOVERED VERANDA: 6 M²
  • TOTAL PLOT SIZE: 206 M²
    • A
    • V
    • A
    • I
    • L
    • A
    • B
    • L
    • E
  • EVEREST HOME D
  • ROOMS: 3
  • TOTAL GROUND FLOOR (SQ.M) : 50.44 M²
  • TOTAL FIRST FLOOR: 66.35 M²
  • TOTAL COVERED VERANDA: 13.29 M²
  • TOTAL UNCOVERED VERANDA: 6 M²
  • TOTAL PLOT SIZE: 206 M²
A note to our visitors

This website has updated its privacy policy in compliance with changes to European Union data protection law, for all members globally. We’ve also updated our Privacy Policy to give you more information about your rights and responsibilities with respect to your privacy and personal information. Please read this to review the updates about which cookies we use and what information we collect on our site. By continuing to use this site, you are agreeing to our updated privacy policy.